4 Bedroom House Plan – ID 14304

Featured For Sale

Overview

  • Bungalow House plan
  • House Type
  • 4
  • Bedrooms
  • 3
  • Bathrooms
  • 168
  • SqM

Description

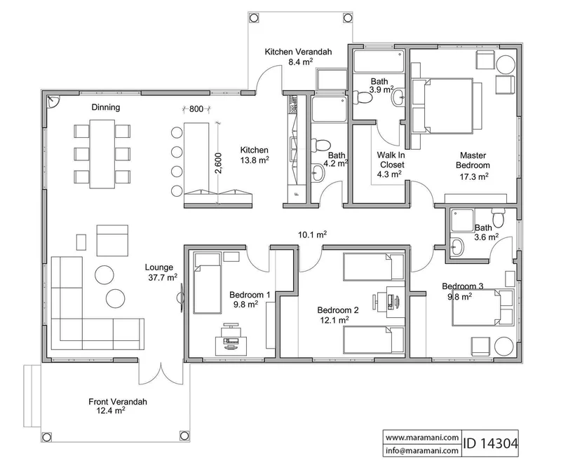
This 4 bedrooms single story house plan was inspired by the simple, functional concept. The design has an open lounge connected to the dining with an open kitchen Inside this beautiful family home, each bedroom features an elegant ceiling treatment, large window and relatively huge bedroom space. The master bedroom has a walk-in closet and is fully serviced with its own bath and tub. The third bedroom has its own bath and the other two bedrooms share a bath. A well-ventilated lounge welcomes you the moment you enter the house. A corridor separates it with the dining areas, and the large island kitchen includes a walk-in pantry and easily serves the spacious dining room.

Details

  • House Size: 168 SqM
  • Bedrooms: 4
  • Bathrooms: 3
  • House Type: Bungalow House plan
  • House Status: For Sale

Schedule a meeting

Tour Type

Contact Information

View Listings

Enquire About This Property

0 Review

Sort by:
Leave a Review

Leave a Review

Similar Listings

Compare listings

Compare
House Plans Designer
  • House Plans Designer